Designed for every chapter.
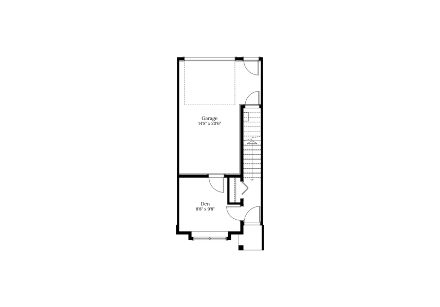
Located at 1511 Atlas Drive, your Boundary townhome features traditional architectural details and offers exceptional space and functionality. This residence also includes a den.
Discover more.
Floorplans
Townhome
Located at 1511 Atlas Drive, your Boundary townhome features traditional architectural details and offers exceptional space and functionality. This residence also includes a den.