Designed for every chapter.
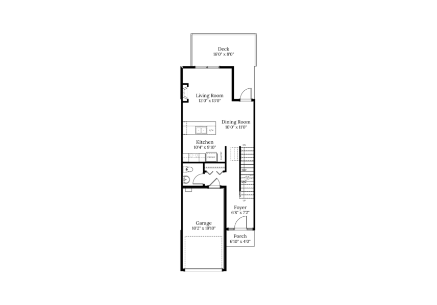
Located at 2873 Ledgestone Crescent, your Boundary townhome features traditional architectural details and offers exceptional space and functionality. This residence also includes a media room and a den.
Discover more.
Floorplans